Máquina empacadora automática de bandeja de cables
      
                1. Mejorar la eficiencia de la producción: La máquina empacadora automática adopta un sistema operativo automatizado, que puede completar continuamente la acción de empacado, aumentando considerablemente la velocidad de producción. En comparación con el envasado manual, es más eficiente y ayuda a acortar el ciclo de producción.
2. Ahorre costos laborales: la máquina empacadora automática puede reemplazar a varios trabajadores manuales para las operaciones de empaque, lo que reduce la inversión de la empresa en recursos humanos y reduce los costos laborales.
Principales componentes y parámetros.
Nombre Descripción
El cuerpo principal del marco está soldado a partir de tubos cuadrados de 80x80x3.
Todas las cintas transportadoras están hechas de cintas transportadoras antideslizantes engrosadas.
La placa Q235 de la palanca giratoria está cortada y procesada con láser.
El elevador de giro de material funciona mediante elevación neumática.
Todos los ejes de transmisión están hechos de acero 45# y la superficie está revestida con Luo.
Las guías deslizantes adoptan rieles cuadrados de precisión
Tornillo 2525 husillo de bolas
Servomotor de elevación
La empacadora termofusible
Nombre Descripción
Fuente de alimentación, potencia 220v/50Hz 500w
Velocidad de embalaje ≤1,5 segundos/carril
Grosor de la correa aplicable (0,45-1,0) mm*ancho (9-15) mm
Características: Nunca pierdas la cinta, detección electrónica.
Pantalla CNC, operación simple
Los estándares de accesorios se basan en Milán, Alemania.
Parte de tracción
Nombre Descripción
El cuerpo principal del marco está soldado a partir de tubos cuadrados de 80x80x3.
Servomotor de potencia móvil con reductor y transmisión de piñón y cremallera.
La corredera está hecha de acero 45#, con tratamiento térmico de alta frecuencia y revestimiento Luo en la superficie. Tiene un asiento de aluminio engrosado y está equipado con un control deslizante extendido.
La sujeción adopta un cilindro modelo TN para evitar la rotación.
Parte de paletizado
Nombre Descripción
El cuerpo principal del marco está soldado a partir de tubos cuadrados de 80x80x3.
El cuerpo principal del robot está hecho de perfiles de aluminio engrosados y resistentes.
El manipulador adopta la forma de bifurcar primero y luego presionar para garantizar la firmeza del agarre y la estabilidad del movimiento.
El rodillo para mover paletas está hecho de acero 45#, con superficie revestida, sólido de φ45 mm.
Regla giratoria: para garantizar la escuadra de cada pila de quillas y no rayar las quillas al moverlas, se selecciona una regla redonda y se equipa con un cojinete giratorio en el interior.
⑤Gabinete eléctrico
Nombre Cantidad Marca Modelo
control de pantalla plc 1
Control de pantalla de expansión PLC 2
1 control de pantalla táctil
Interruptor de proximidad varios NPN, 24VDC, normalmente abierto
Interruptor fotoeléctrico varios NPN, 24VDC, normalmente abierto
Electricidad de baja tensión 1 Chint
Servomotor 4 Hechuan 0.75kw
La mayoría de los motores de equipos utilizan servomotores para hacer que el equipo sea más rápido y flexible.
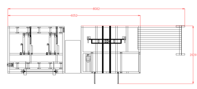
La longitud del equipo es de aproximadamente 6 metros, la longitud de apilamiento es de 2 metros y la longitud total es de aproximadamente 8 metros.
Ancho aproximadamente 2,9 metros

                                            
                                                                                        
                                        
                                            
                                                                                        
                                        
